#2519 Neubau Bauhof Reifnitz in Maria Wörth, Kärnten
1. Preis, geladener Architekturwettbewerb, 2025

Abb.: Vogelperspektive auf das neue Recycling- und Infrastrukturzentrum

„Lasst uns die Sorgen entsorgen“

In Reifnitz entsteht ein zeitgemäßer Bauhof mit integriertem Sammelzentrum. Das Gebäude dient als bürgernahes Abfall- und Problemstoffsammelzentrum und bietet gleichzeitig einen zentralen und effizienten Standort für den Fuhrpark der Gemeinde, zur Instandhaltung der öffentlichen Bereiche des Ortes. Ergänzend wird ein öffentliches WC integriert, um die Nutzung der vorgelagerten Eventwiese bei Veranstaltungen aufzuwerten.

Ziel des Projekts ist es, zirkuläre und umweltfreundliche Bausystemlösungen in einem hocheffizienten Gebäudekomplex zusammenzuführen und damit einen wichtigen Beitrag zu einer zukunftsorientierten und gut organisierten Gemeinde zu leisten.

Abb.: Schwarzplan
Abb.: Lage- und Situationsplan
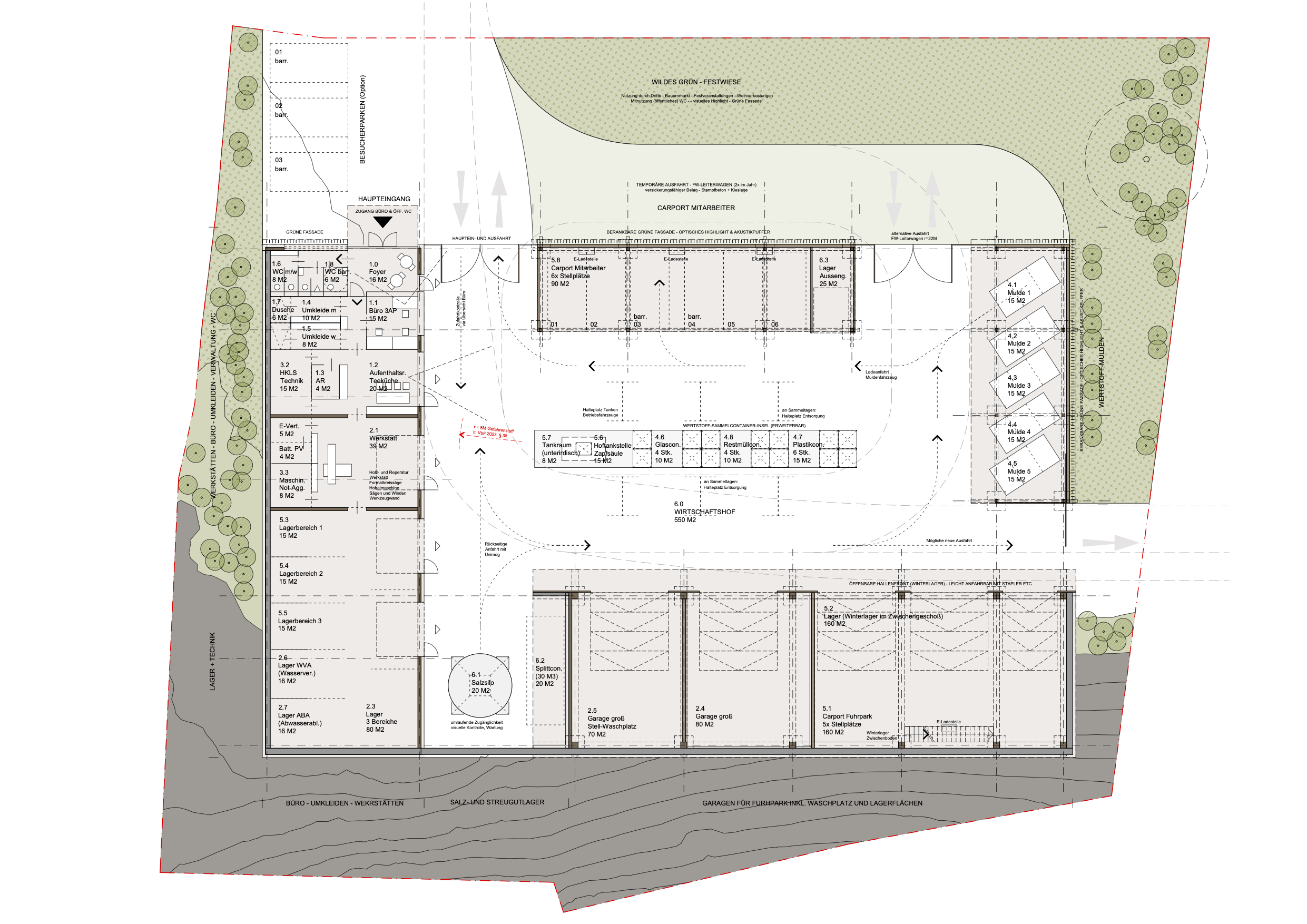
Abb.: Grundriss Erdgeschoß
Abb.: Zirkularitätskonzept – Vorfertigung und Zerlegbarkeit & Wiederverwendbarkeit von Bauteilen
Abb.: Architekturmodell

Architektur: atelierbrandstoetter.at in Zusammenarbeit mit studio-calas.net
Projektteam: Arch. DI Jakob Brandstötter, Arch. DI Dr. techn. David Calas, DI Lorenz Jocher
Animation & Visualisierung: atelierbrandstoetter.at
Modell: studio-calas.net

#2515 Um- und Zubau Volksschule 1, Leibnitz, Steiermark
2. Stufe, Verhandlungsverfahren, 2025

Abb.: Perspektive Schulgarten

Lerngarten Leibnitz

Die Volksschule 1 in Leibnitz wird umgebaut und erweitert. Geplant sind drei moderne Bildungscluster mit einer gemeinsamen Mitte für Pausen und kreative Aufgaben – ein multifunktionaler Bereich. Da das bestehende Gebäude die erforderlichen Räume nicht bietet, wird die Schule durch einen Zubau ergänzt.

Der Zubau wird über dem bestehenden Bewegungsraum („Turnsaal“) positioniert. Dadurch wird die klare städtebauliche Kante entlang des Straßenverlaufs fortgeführt. Gleichzeitig bleibt der Lerngarten im Westen des Schulareals weitgehend erhalten und wird durch gezielte Baumpflanzungen aufgewertet.

Die charakteristische Terrassierung des Zubaus ergibt sich aus der geschossweisen Gliederung der Funktionen. Sie staffelt sich zum Schulgarten hin ab und ermöglicht den Klassen sowie der Ausspeisung in den Obergeschossen einen weitläufigen, grünen Ausblick.

Abb.: Baukörperentwicklung
Abb.: Lageplan
Abb.: Grundriss Erdgeschoß
Abb.: Perspektive Waganstraße

atelierbrandstoetter.at in Zusammenarbeit mit kosaplaner.at
Architektur: atelierbrandstoetter.at
Projektteam: Arch. DI Jakob Brandstötter, Arch. BM Alfred Müller
Visualisierung: ateliermchv.com

#2502 Rotes Kreuz Rettungsstation „Auf der Schmelz“, Wien
EU-weit offener Architekturwettbewerb, 2025

Abb.: Perspektive „Park der Helfenden“

Das Haus der Helfenden – Rettungsstation „auf der Schmelz“

“Auf der Schmelz” entsteht eine neue, moderne Rettungsstation des Österreichischen Roten Kreuzes, Landesverband Wien. Das Projekt zielt auf einerseits hochfunktionale Abläufe und zugleich klare räumliche Zuordnung der Nutzergruppen ab. 

Die MitarbeiterInnen des Rettungsdienstes und die Freiwilligen HelferInnen bilden gemeinsam das Rote Kreuz, sie alle sind Helfende. Der Entwurf stellt die Gemeinsamkeiten und Überschneidungen in den Vordergrund

Ein Haus für RetterInnen, ein Haus für Freiwillige, ein Haus für Menschen. Das Haus der Helfenden.

Architektur: atelierbrandstoetter.at
Visualisierung: expressiv.at

#2422 Sanierung und Erweiterung Bildungscampus Herzogenburg, Niederösterreich
2. Stufe, Verhandlungsverfahren, 2024

Abb.: Perspektive auf den neu geschaffenen Zubau und Haupteingang

Herzlichst holzig in Herzogenburg

Der Bildungsstandort Herzogenburg wird saniert und um einen kompakten, innovativen Gartenpavillon erweitert. In ihm werden Sonder- und Musikschule künftig beheimatet. Synergien entstehen durch eine kurze Anbindung an das Volksschulgebäude und schaffen so einen gut vernetzten Campus für alle Bildungsbedürfnisse.

Abb.: Baukörperentwicklung

Abb.: Lageplan
Abb.: Architekturmodell

atelierbrandstoetter.at in Zusammenarbeit mit kosaplaner.at und swietelsky.at
Architektur: atelierbrandstoetter.at
Projektteam: Arch. DI Jakob Brandstötter, Arch. DI Clemens Bernhofer
Modell: Arch. DI Jakob Brandstötter
Visualisierung: expressiv.at

#2224, HBLA für Wein- und Obstbau, Klosterneuburg
EU-weit offener Architekturwettbewerb, 2022

Abb.: Perspektive auf den Hauptzugang und Shop

Weinobstcampus

Die HBLA + BA Klosterneuburg für Wein- und Obstbau bedingt einer Erweiterung der Forschungs- und Bildungsbereiche, sowie des erfolgreichen Sport- und Veranstaltungsbetriebes. Ein neuer Zubau soll den künftigen Campus nach Süden hin abschließen.

Das Charakteristische Hanggrundstück sowie die für die Region prägende Weinlandschaft wird als Anlass genommen im vorgeschlagenen Projekt eine Terrassenschule mit grünen Lehr- und Pausenterrassen sowie Forschungsreben als gestalterisches- und funktionales Stilmittel zu erarbeiten.

Abb.: Innenperspektive – heller, offener Raum für Spiel-, Sport- und Veranstaltungen – das neue Herzstück des Campus

Abb.: Architekturmodell

Architektur: atelierbrandstoetter.at in Zusammenarbeit mit architekt-pfoser.at
Projektteam: Arch. DI Jakob Brandstötter, Arch. DI Wolfgang Pfoser, Arch. DI Paul Pfoser, Franziska Weber
Modell: Arch. DI Jakob Brandstötter, Ing. Wendelin Hartmann
Visualisierung: Lukas Aschauer

#2212, Neubau Firmencampus Starlinger, Berndorf – Pottenstein
2. Stufe, geladenes Verhandlungsverfahren, 2022

Abb.: Vogelperspektive „Business Campus Berndorf-Pottenstein“

Business Campus Triesting

Entlang einer, der für die Triesting üblichen, Schwemmzonen soll ein neuer, nachhaltiger Business Campus für einen weltweit agierenden Maschinenbaukonzern entstehen. Regionale Aufwertungen, wie die Attraktivierung der Uferzone, oder ein CO2 Monitoring – Besucherturm runden das Campus-Konzept ab.

Die klare Gliederung der Funktionsbereiche in Halle und Büros mit dem Technikum als Bindeglied zwischen Büro und Werkstätten bilden das Grundkonzept. Kompakte gut belichtete Spangen mit den einzelnen Betriebs- und Produktionsbereichen erzeugen die Identitätsstiftende Gebäudestruktur.

Abb.: Innenraumperspektive Eingangshalle mit Blick auf die Ausstellungshalle, Infopoint und Besprechungszone
Abb.: Architekturmodell

Das Modell des neue Business Camus zeigt die Erweiterungspotentiale und „ruhenden Reserven“ am Areal beispielhaft auf. Die vorgeschlagene Grundstruktur schafft Platz und bietet Raum für künftige betriebliche Veränderungen und Erweiterungen der Fertigungswege.

atelierbrandstoetter.at in Zusammenarbeit mit kosaplaner.at
Architektur: atelierbrandstoetter.at

Projektteam: Arch. DI Jakob Brandstötter, Arch. BM Alfred Müller, Mag. Werner Kosa
Modell: Arch. DI Jakob Brandstötter, Ing. Wendelin Hartmann

Visualisierung: Lukas Aschauer

#2126, Wohnbebauung Donaustadtstraße, Wien
1. Preis, geladener Architekturwettbewerb, 2022

Abb.: Perspektive Donaustadtstraße

An der Donau Zuhause – Im Garten Daheim

Der freie Blick auf die Alte Donau + ein grüner Hof, vertikale Begrünungen und divergente Gemeinschaftsdachterrassen. Der Hof als zentraler Katalysator für die Bildung einer gemeinschaftlichen Bewohnerschaft. Wohnen in der Powolnygasse – Donaustadtstraße.

Entlang der Donaustadtstraße entsteht in Zukunft ein modernes, durchmischtes vertikales Stadtquartier mit großzügigen Grünflächen und Gründachterrassen sowie markant gesetzten Höhenakzenten und Nachverdichtungsinterventionen.

Abb.: Grundriss Erdgeschoß

Abb.: Perspektive in den Gartenhof der Wohnanlage

Architektur: atelierbrandstoetter.at in Zusammenarbeit mit b-h-architektur.at
Projektteam: Arch. DI Jakob Brandstötter, Arch. DI Benjamin Aumayer
Modell: Arch. DI Jakob Brandstötter
Visualisierung: Lukas Aschauer

#2116 Neugestaltung Seebad Rust, Burgenland
4. Preis, EU-weit offener Wettbewerb, 2021

Abb.: Perspektive Ufermeile Seequartier

Auf Stegen zuhause – Seequartier Rust

Das Seebad Rust am Neusiedlersee liegt eingebettet in eine kulturell, kulinarisch und landschaftlich besonders reichhaltige und wertvolle Region. Das neue, ganzheitliche Gestaltungskonzept spannt den angemessenen Rahmen für diesen besonderen Ort und seine Gäste.

Abb.: Perspektive Sport- und Aktivitätenachse

Architektur: atelierbrandstoetter.at in Zusammenarbeit mit b-h-architektur.at
Projektteam: Arch. DI Jakob Brandstötter, Arch. DI Benjamin Aumayer
Visualisierung: Lukas Aschauer